CASA DUE, rosta, italy, new construction, 2017Read less
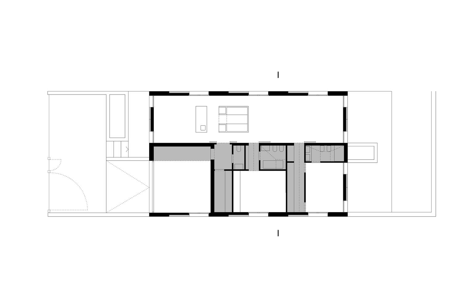
the intervention consists of a single-family house on one level. a rectangular shaped plan develops regular fronts punctuated by full and empty spaces through openings alternating with structural blind walls and sliding panels. a central service “spine” separates the sleeping area from the living area, which is organized as a succession of spaces overlooking the natural landscape of the moraine hill. the outdoor is s an extension of the house: on one side the entrance from the road is defined by a raised podium, on the other a more intimate space takes place. it is a strong geometric gesture that emphasizes the contrast between artificial intervention and natural landscape.
FOR private client LAST stefano larotonda architetto WITH more - moretti COLLABORATORS andrea tregnago, sofia speroni IMAGES marco cappelletti