NEW OFFICES, oggiono, italy, renovation, 2017Read less
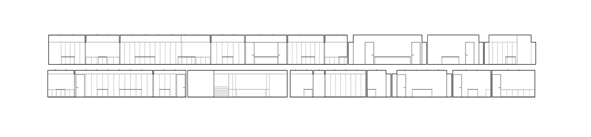
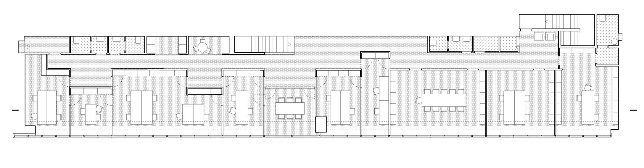
a new free space plan gives an opportunity for the new offices layout in the existing industrial building. the partitions between the offices are made with glass and they are connected through look and doors creating a continuity of the floor plan. opposite to the glass facade there are blanked walls that creates a back where the furniture shelves are located. the project shows a “upside-down” plan attached to the ceiling that defines a partition of spaces like the “soffitto a cassettone”. some office rooms are stepping back toward the corridor defining common and leisure areas
FOR novatex italia LAST stefano larotonda architetto COLLABORATORS andrea tregnago, sofia speroni, simone fagini IMAGES isabella sassi farias