MAMBO, primary school, magliaso, switzerland, competition, 2019Read less
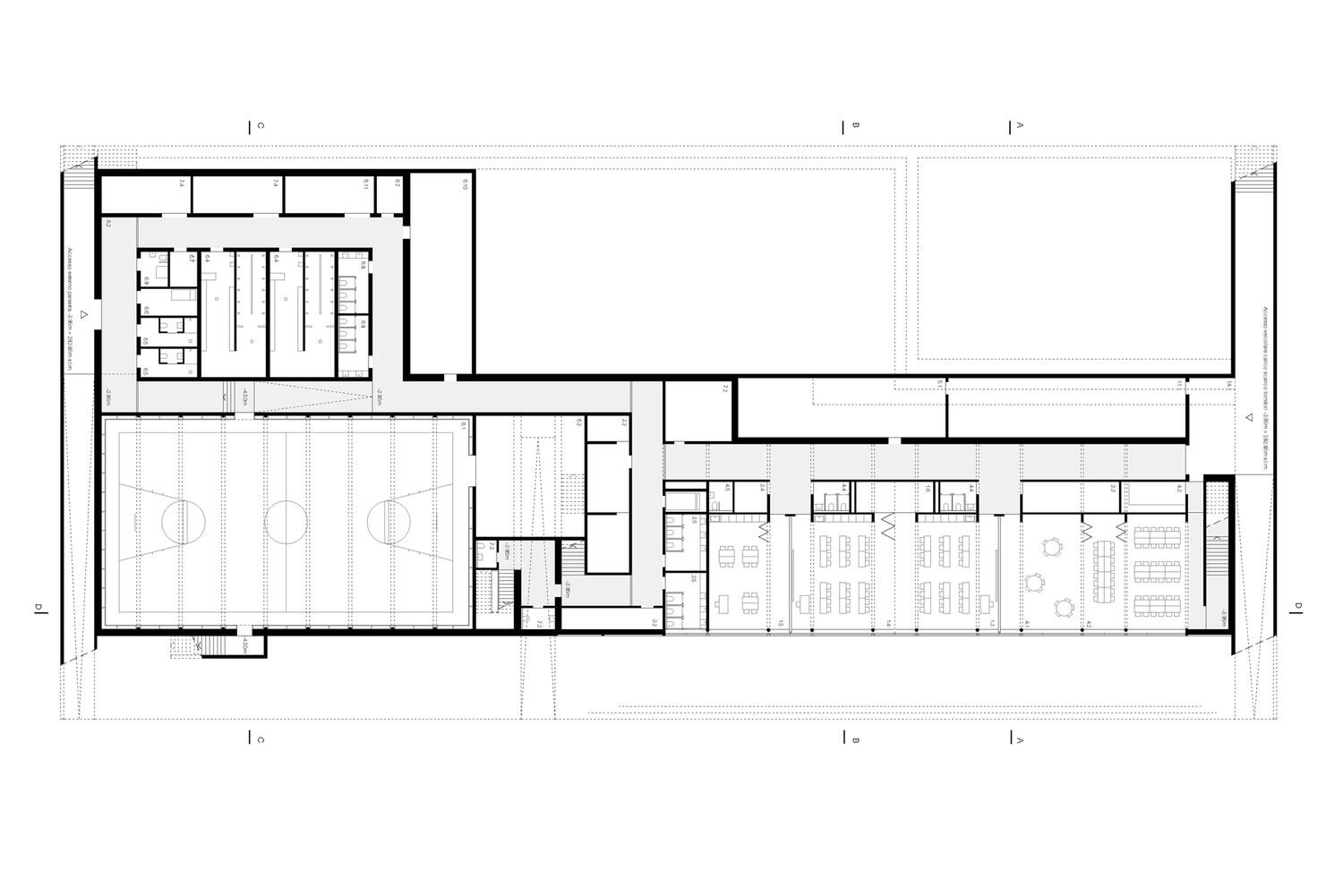
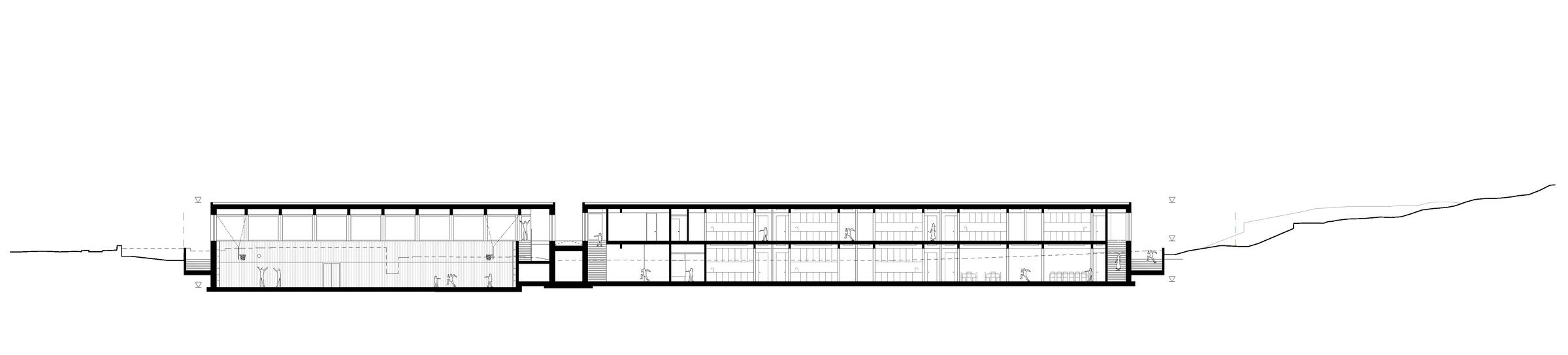
the project is made up of two essential and regular volumes that produce an unicum. they have two different functions: a sport area, and a school. both buildings are developed on two levels, and they are placed on a podium. this element draws an artificial topography with green and paved areas, creating a new relationship with the sport field and the surrounding landscape. the school building is accessed via a covered outdoor area that can be used during the break. then, the volume of the gym emerges from the podium and it is connected to the parking areas by a ramp. since the main entrance is independent, this space can be used also in the evening by sport associations.
LAST stefano larotonda architetto WITH ing. mario monotti COLLABORATOR andrea tregnago RENDERS stefano zeni